赣南锦程专业人工挖孔桩施工队
首页
企业简介
产品大全
联系我们
企业信息
访客留言
产品列表
PRODUCT
人工挖孔桩 南昌人工挖孔灌注桩全国各地均有设备
人工挖孔灌注桩伸进承台100吗
人工挖孔桩 海南赛邦人工挖孔桩 查看 高清图片 高清大图
招投标时是人工挖孔灌注桩,施工时发现人工挖孔比较危险施工单位提出改成旋挖桩
造价笔记Day10--人工挖孔桩(1)
人工挖孔桩技术交底2
【人工挖孔桩】某人工挖孔桩设计说明及节点构造详图_土木在线
建筑超深人工挖孔桩如何施工?如何保证施工质量?全面详细解读
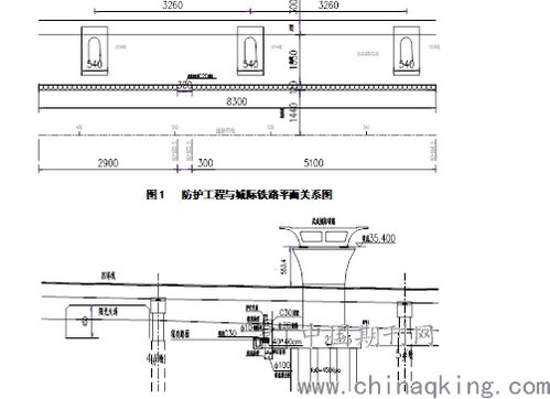
唐山市丰润区动车城外环下穿京哈铁路立交工程
基础施工全流程,图文并茂,看完再不会就不能怪别人了
11步让你了解基础施工全流程 挖孔桩 旋挖桩
【不能爆破用什么办法开采石头北京东城型号规格】-
人工挖孔桩的井口上架着的那个像三脚架的设备叫什么名字 作用是什么 谢谢
北京昌平区打桩公司
人工挖孔桩施工工艺流程-20221015.docx
闻令而动 使命必达 密云区溪翁庄镇麓秀佳园抢险修复工程全面竣工
人工挖孔桩工程安全施工方案编制要点ppt课件
造价笔记day10 人工挖孔桩 1
标准做法 知名施工企业地基与基础施工质量培训图片
【山西运城大型开采石头机器】-
如若转载,请注明出处:http://www.gnzywk.com/product/list-7.html
1
5
6
7
8
9